Bilocale in vendita

Mappano, Via Colombaro
€ 79.000
2 locali 2 locali
45 Mq 45 Mq
1 bagno 1 bagno

Bilocale in vendita

Mappano, Via Colombaro

Descrizione annuncio

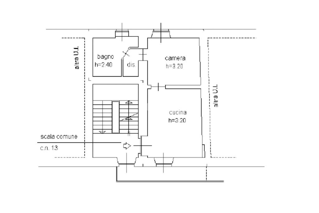
In posizione comoda ai negozi e ai servizi ma all'interno rispetto alla statale. L'appartamento si trova al primo piano di quella che era Cascina Colombaro. Le spese condominiali sono basse e l'alloggio è stato completamente ristrutturato internamente due anni fa. Il riscaldamento è autonomo tramite condizionatori. Internamente si sviluppa su una comoda zona giorno con l'angolo cottura su una parete. Nella zona notte troviamo la camera e il bagno con un comodo box doccia. Viene venduto arredato.

Punti di forza sono le basse spese condominiali, i condizionatori appena sostituiti e la comodità per la fermata dell'autobus.

Ideale anche come investimento.

Mostra tutto

Nelle vicinanze

Trasporto pubblico Trasporto pubblico
stazione di Torino Stura
stazione di Torino Stura
2,6 Km
Falchera
Falchera
1,8 Km
Falchera Cap.
Falchera Cap.
1,8 Km
Galvani
Galvani
140 m
Don Amerano
Don Amerano
270 m
Ricariche auto elettriche Ricariche auto elettriche
Evway Settimo Cielo Retail Park
2,1 Km
Scuole Scuole
Scuole
350 m
Istituto "Giovanni Falcone"
640 m
Mappanmondo
730 m
IC "Leonardo da Vinci"
1,5 Km
Scuola Elementare "Antonio Ambrosini"
2,1 Km
Farmacia Farmacia
Farmacia Comunale 4
170 m
Farmacia
260 m
Il Giglio
650 m
Farmacia della Stura
2,1 Km
Nat & Bio
2,1 Km
Supermercati Supermercati
Ins mercato
1,7 Km
Negozi Negozi
Momi
140 m
Negozi
310 m
Zaia
640 m
Piazza Italia
2,0 Km
Takko
2,1 Km
Bar Bar
Bar
190 m
Chiosco Mappano
400 m
Lai
690 m
Bar Jena
2,4 Km
Bar Stazione
2,6 Km
Ristoranti Ristoranti
Ristoranti
260 m
Piccolo Ranch Paradiso
560 m
Vecchio Pavone
930 m
Pepe Vino e Cucina
1,1 Km
Il Ciclope
2,1 Km
Mostra tutto

Caratteristiche

Rif.:
61206042
Piano:
1 (Piano basso)
Balconi:
1
Camere da letto:
1
Arredamento:
Completo
Condizionamento:
Autonomo
Mostra tutto
Prezzo Prezzo
€ 79.000
Rata mutuo Rata mutuo
€ 374 / mese
Spese annue Spese annue
€ 600
Proponi il tuo prezzoProponi il tuo prezzo

Classe Energetica

E
E
E
E
E
E
E
E
E
EP globale non rinnovabile:
140.62 kW h/m² anno
EP globale rinnovabile:
97.04 kW h/m² anno
EP invernale del fabbricato:
EP estiva del fabbricato:
Anno di costruzione:
1900
Riscaldamento:
Autonomo
Tipo impianto:
Ad aria
Tipo alimentazione:
Altro

Ti interessa visionare l'immobile?

Fissa un appuntamento  Fissa un appuntamento

Richiedi informazioni

Clicca su Leggi per aprire l'informativa
* Questi campi sono obbligatori

Calcola il tuo mutuo

Semplice e senza impegno
Anticipo

( % )
Mutuo

( % )

pochi semplici passi

inserisci i tuoi dati
Questionario completato
Grazie per aver richiesto un appuntamento senza impegno con un nostro Consulente del Credito e Assicurativo.

Hai inserito correttamente tutti i dati necessari e a breve riceverai una e-mail con un link da convalidare per inviare i tuoi dati.
Affiliato
Studio Mappano Sas
St.da Cuorgne', 138 10072 Mappano (TO)

Il nostro staff


  • Moreno Baggio
    Affiliato

  • Giorgio Petruzzi
    Responsabile
St.da Cuorgne', 138 10072 Mappano (TO)
Zona: Mappano-Falchera
Mostra su mappa
Orari: Lun-Ven 08.30-12.30 14.30-20.00 Sab 08.30-12.30 14.30-19.00
Affiliato
Studio Mappano Sas
St.da Cuorgne', 138 10072 Mappano (TO)

2026 Tecnocasa Franchising S.p.A. - P. IVA 08365160152 - Via Monte Bianco 60/A 20089 Rozzano (MI). Ogni agenzia ha un proprio titolare ed è autonoma. Privacy policy | Policy utilizzo | Cookie policy